Peckham Hill Street, Peckham
£450,000
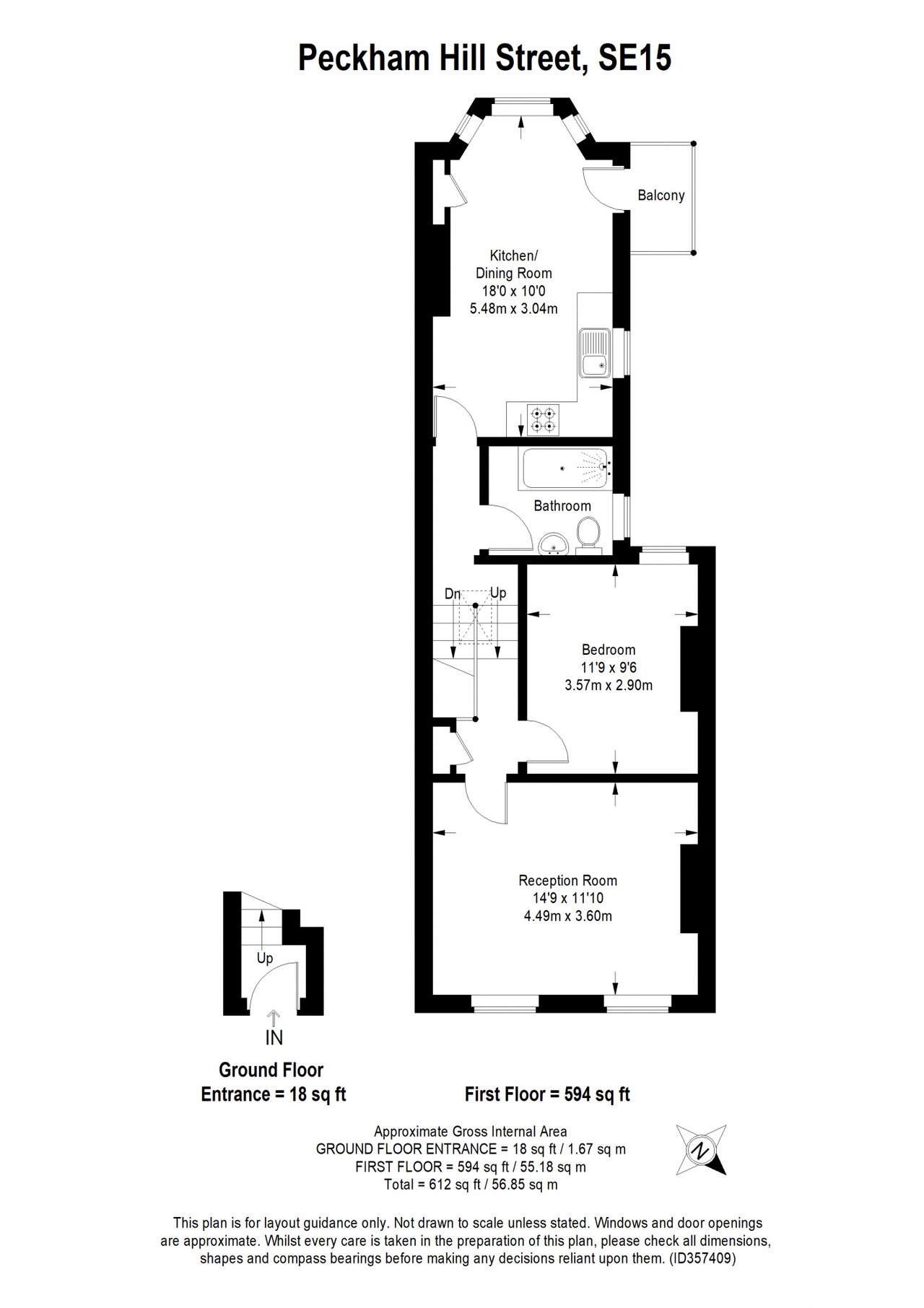
Smart and oversized first floor Victorian conversion flat of 612 square feet, with attractive allotment views from the reception/kitchen’s bay window, and a cute metal balcony. A large loft is also demised to the flat. More good news? The seller is in the process of extending the lease.
The location? A popular Peckham street which is just 10 minutes from Peckham Rye Station/12 from Queens Road Peckham Station. Both are Fare Zone 2 and on the Overground/Windrush line, as well as offering mainline services.
Stroll a minute for bus links (it is but a 15 minute bus ride to Elephant & Castle for the tube). You are also pleasingly-close to Burgess Park and the Surrey Canal path.
From the shared hall your front door is directly ahead. Open and take your stairs up. From this half-landing area, you have the property’s sash-windowed bathroom to your right. This has modern white sanitary ware and stainless steel fittings, including an over-bath shower. Large profile wall tiles give a fancy hotel feel.
At the rear of the flat you have a delightful double-aspect kitchen/diner, of 18 feet by over 10 feet, with a sunny SW-facing bay window. Fitted units (sans handles) are neat, white and timeless. Engineered oak to the floor is another fab decision.
From the main landing you have your double bedroom set to your left. This is over 11 feet by over 9 feet, with a pale carpet and pale walls (Farrow & Ball hues are a great shout, throughout).
Then across the front of the house you have your large and light carpeted twin-sashed reception room, of over 14 feet by nearly 12 feet. Coving, ceiling rose and dado detail further impress.
Bellenden Road is a short walk for independent cafes, restaurants and shops. Our favourites include Artusi, Ganapati, The Begging Bowl, The General Store, Review bookstore, Bara and Petitou (the latter two are on nearby Choumert Road). Flock & Herd (butcher) and The Life of Fish (fishmonger) are great here, too.
In the direction of and nearer QRP Station, check out The Meeting House (on Meeting House Lane) - a new already-popular local coffee shop through to wine bar, Naïfs family-run vegan bistro is local and lovely as well (Goldsmith Road), Kudu, Peckham Cellars and Beer Rebellion.
Local public houses include The Montpelier, The Prince Albert, The Prince of Peckham, and The Vic(toria) Inn.
Rye Lane is really close, as well, for trendy destinations such as Peckham Levels, Peckham Plex Cinema, The Market Building and The Bussey Building (yoga classes, exhibitions and more) and Copeland Park, plus handy high street shops, markets and services.
For more options, Bermondsey, Borough, Camberwell, Nunhead, New Cross, Deptford and Dulwich are easily-reached.
- Tenure: Leasehold
- Service charge: £800 per annum
- Council tax band: C
- Borough: Southwark
Floorplan
Map Streetview
Enquire
For further information or to arrange a viewing please call 020 3318 8900


























