Grove Park, Camberwell
£950,000
Big, beautiful, recently renovated conversion flat within a supersized semi, with two bedrooms and two bathrooms, and a large garden which has side access and direct access from the second bedroom and the kitchen/reception room. Chain free.
The location is leafy Camberwell Grove Conservation Area. Denmark Hill and Peckham Rye stations are reached by foot in 10 and 12 minutes respectively. Permit-parking is available on the street.
Throughout the property, you have notably high ceilings, high-end fixtures and fittings, and a neutral decorative scheme.
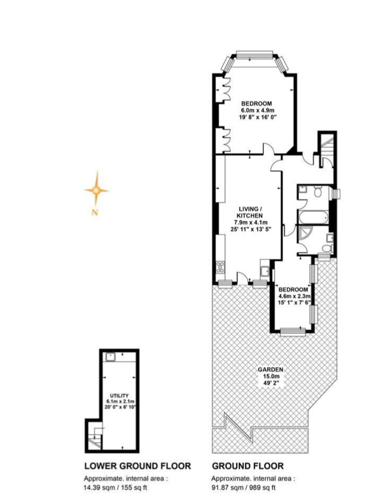
A deep front garden is shared and lawned. Enter a shared main door then your own front door is directly ahead. From your windowed hall to your left is access to the cellar.
To your right is the generous kitchen/reception room, which runs over 25 feet by over 13 feet, with stripped and treated floor boards. Fabulous fitted units are topped with wooden counters.
Off this room to the front of the house is your incredible master bedroom. It’s a whopper! At over 19 feet by over 13 feet, with a big bay window (complete with window seat), coving and rose detailing, a pale carpet, a wood burner and two sizeable custom-made wardrobes to the alcoves.
Return to the hall to find your main windowed bathroom, with a sleek white suite. Finally you have your second bedroom (of over 15 feet by over 7 feet) with a pleasing double-aspect onto the garden and a back door out to it, too. A windowed en suite shower room completes matters.
Your generous private garden is low-maintenance and laid to lawn.
What an excellent location to call home. Bellenden Road is a nine minute walk, and central Camberwell a similar distance, down gorgeous Camberwell Grove.
Peckham Rye and Denmark Hill stations (both Zone 2) are both local with regular and Overground services. London Bridge, London Victoria, Clapham Junction, Kings Cross St Pancras and Canary Wharf (via Canada Water), among other destinations, are all quickly reached.
Lettsom Gardens is popular with locals. A nominal yearly membership will bag you a key. A large Sainsbury’s store is close by on Dog Kennel Hill, by Dulwich Hamlet FC, and there’s also a M&S nearby on Grove Vale by East Dulwich Station (also Zone 2).
Local parks include Ruskin Park - with bandstand events throughout the summer, Warwick Gardens, Peckham Rye Park and Common and Dulwich Park.
Central Peckham is a cultural and gastronomic mecca. Check out Bellenden Road, Choumert Road and Blenheim Grove for some top restaurants, bars and cafes (Artusi, Levan, Il Giardino, Hausu, The Begging Bowl and Ganapati to name a few), while Rye Lane gives you Peckham Levels and Bold Tendencies, and Frank's Bar and The Bussey Building's rooftop bars in the warmer months, plus Peckham Plex Cinema (dedicated to films for £5.99).
South London Gallery is close as well, and Camberwell leisure centre has good classes and gym and swim facilities in a pretty Victorian setting. Gladwell’s in Camberwell is a fine spots for luxury groceries. Local recommended places to eat and drink in SE5 include Theo's, The Camberwell Arms, The Kerfield, The Bear, Silk Road, Veraison Wines, Nandine and Hermits Cave.
For small ones, The Villa Nursery and Pre-Preparatory School is close at hand (2-7). As are Lyndhurst, Dog Kennel Hill and The Belham primary schools. The Dulwich independent schools are also but a short drive.
- Tenure: Leasehold (approx. 107 years remaining)
- Service charge: £1,484.50 per annum (plus buildings insurance)
- Ground rent: £200 per annum
- Council tax band: D
- Borough: Southwark
Floorplan
Map Streetview
Enquire
For further information or to arrange a viewing please call 020 3318 8900






































