Edric Road, New Cross
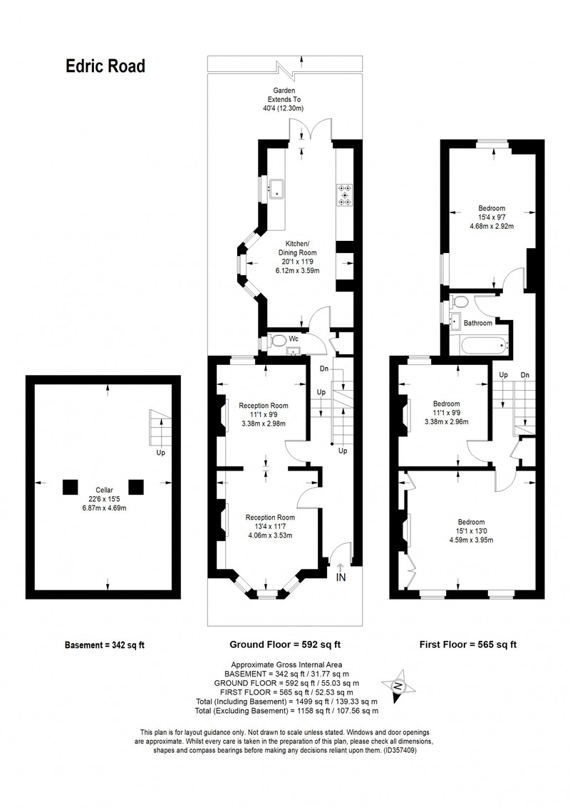
Lovely bay-fronted three double bed Victorian terrace, with a sunny south-facing garden of 40 feet. A boarded loft (with hatch access from the landing), a large cellar and guest w.c. complete the fine offering.
Your new home has loads of welcome features. Enjoy stripped floors, period fireplaces plus a wood-burner in the kitchen/diner, and sash windows (the front ones are graced with on-trend custom-made shutters).
The location is a favoured residential street within Hatcham Conservation Area, pleasingly close to Hatcham Primary School (you are also within easy walking distance of the Haberdashers’ Secondary).
Your local stations? Are New Cross Gate and Queens Road Peckham. Both are a 12 minute walk, Fare Zone 2, and on the Overground network. Bus travel is easy from here, too. The 21 whizzes you to London Bridge, and the 453 to Trafalgar Square.
Car parking is currently unrestricted on this and surrounding streets, and there is a handily-placed bike hangar outside the neighbouring house.
Open your front door to a high-ceilinged hall, with your double-reception resting to your left. Your front room is over 13 feet by over 11 feet, with ceiling rose and coving detail, built-in alcove shelving/cupboards, and the first of your fetching fireplaces (this one has a tiled hearth and insert and a marble surround, as next door).
Reception two (a natural formal dining room, currently enjoyed as a music room) is over 11 feet by over 9 feet, with built-in shelves to the near alcove, and a sash window onto the side-return area of the garden.
Down the hall and you access your basement under the stairs. Excellent for easy-access storage, this is a notably large one, at 342 square feet. Others on the street and in the area have converted theirs (obtaining another bedroom/reception plus bathroom and utility).
Back on the ground floor and just before the kitchen you have a built-in larder cupboard to your right, and opposite is a cute downstairs w.c. This has a double-glazed window and smart metro-tiles.
Next up is your bright and double-aspect kitchen/dining room, which runs over 20 feet - to timber-framed French doors out to the garden. The property’s second bay window provides the perfect spot for your table and chairs. The fitted kitchen has neat white modern base units paired with open-shelves. Poured concrete counters and a large ceramic Butler sink further feature.
Up the stairs and from the half-landing first find your bathroom on your left (white suite here), then you have bedroom one next door. This is over 15 feet by over 9 feet, and has a pale carpet and a sash window to each external walls.
From the landing proper (noting the original built-in linen cupboard), your second bedroom is to your right. This is over 11 feet by over 9 feet, with a feature fireplace and pale carpet.
Your principal front bedroom spans the width of the house. It is 15 feet by 13 feet, with stripped boards to the floor, deep blue walls, and original built-in cupboards to the alcoves (also in blue).
The immediately local area? Hatcham CA is a tucked-away residential pocket of SE London. From 1614, the land was owned by the Worshipful Company of Haberdashers. When the manor house (‘Hatcham Park’) was demolished circda 1840, terraced homes were permitted to be built. Rescued from demolition in the seventies (thank goodness!), Hatcham Conservation Area was designated by Lewisham in 1990.
Stroll just 12 minutes to New Cross Gate Station or to QRP Station. There are also plenty of day and night bus routes within a short walk of the house; to Elephant & Castle and beyond, or to Peckham, Deptford, Greenwich, Brockley and Lewisham.
Local parks include Telegraph Hill (Upper and Lower, with Saturday Farmers’ Market, or hop on a bus down to Brockley Market in the Lewisham College car park), Southwark and Fordham Parks. There are also two little neighbourhood parks: Eckington Gardens (with strong ‘friends of’ group) and Bridgehouse Meadows. Besson Street Community Garden is a smashing local asset as well.
Local eateries, drinkeries and cafes of note include Corner (cafe/bar), The Old Library (bar plus music studios/live music venue), The Rose Inn, Cup.PhoBun and The Earl of Derby. New Cross is home to Goldsmiths University and a cool contemporary art gallery: Goldsmiths CCA.
Nip down to neighbouring SE15 for more options. These include Peckham Bazaar, Ganapati, The Begging Bowl, Forza Wine, Artusi, Levan and Il Giardino.
Alongside its popular long-running market, Deptford has a top gastronomic and bar offering. We rate Jazu, Watergate (small plates, cocktails, wine), Marcella (modern Italian), Salt (pizza, craft beer) and The Dog & Bell pub to name a few.
Deptford also has a popular theatre: The Albany, and a modern leisure centre with lane pool and sauna/steam rooms, next door to the library. Lewisham and Peckham also have good leisure centres with pools.
Grab your fresh loaves from Blackbird Bakery by QRP station, or at Ayres on nearby Nunhead Lane. While you’re in Nunhead, check out Soper’s (wet fish shop), El Vermut and Mother Superior (fancy bottle shops with tables) Goodcup/Goodnights (coffee/cocktails) and Bar D4100 (bar and pizza).
Kids or on the horizon? Your most local primary is just at the end of the road (in a traditional Victorian school building with a modern architectural treatment by Jestico + Whiles, and which feeds to the secondary school based in New Cross’s Telegraph Hill Conservation Area), Edmund Waller and Kender. Deptford Green is a second well-regarded local secondary school.
- Tenure: Freehold
Floorplan
Map Streetview
Enquire
For further information or to arrange a viewing please call 020 3318 8900


















































