Dulwich Mews, East Dulwich Road, East Dulwich
£415,000
Lovely one double bedroom garden flat with a load of excellent boxes ticked! You have a Freehold-share, a private south-facing garden (with direct and external access), a designated off-street parking bay, your own front door and loft storage as well. Chain free (with a favoured completion date being agreed for early April).
Your new flat is located in a small, modern and private development, opposite Goose Green and by East Dulwich Leisure Centre. Lordship Lane, Bellenden Road, and Peckham Rye Park & Common are all pleasingly close, as is East Dulwich Station (Zone 2) - just a five minute stroll. Or walk 11 minutes for Peckham Rye Station (also Zone 2).
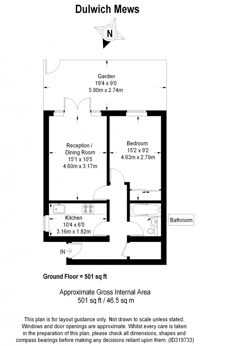
Open your own front door into the main hall area. A generous cupboard features straight ahead. Then your kitchen sits off to the left. This is a fitted one with white units on one side, and open shelving on the other.
To your right is the bathroom, which has a white suite, pale tiling, and an over-bath shower.
Next up is the large reception room (lounge and dine in here comfortably), of 15 feet by 10 feet. French doors open out to the garden. This is paved and walled, with well-stocked borders.
Your bedroom is next door (accessed from the hall) and is a very respectable 15 feet by 9 feet, complete with huge built-in wardrobe. A large window looks out to garden views. Your reception and bedroom are particularly bright owing to their southerly aspect.
A more well-connected location you couldn’t wish for! Two stations a short walk from your door, plus lots of handy bus routes from East Dulwich Road and Peckham Rye. Peckham Rye Park and Common’s 113 acres are a short walk away, as are Lordship lane, Bellenden Road and Rye Lane. Goose Green with its fab London plane trees is just over the road.
Lordship Lane is great of a weekend or evening: recommendations are North Cross Road’s ever-popular Saturday market, East Dulwich Picturehouse, The EDT, The Bishop, The Palmerston and Franklins to name a handful. The M&S Food Hall is well-liked but for more independent grocery shopping, check out William Rose butchery, Brothers, The Cheese Block, Mons, Moxon’s and SMBS.
Peckham’s charms are also close, and you can even go rooftop for drinks, at Franks, or atop the Bussey Building of the summer months. SE15 has an ever-growing bunch of brilliant restaurants and casual eateries, too. We particularly like Mr Bao, Ganapati, Artusi, The Begging Bowl, Peckham Bazaar and Hausu among others! Cafe culture thrives in this locale too, with plenty of choices within half a mile.
East Dulwich Leisure Centre is (no excuses!) close for classes, swim and gym and there is a friendly Parkrun on Saturdays (9am start) on Peckham Rye. For more leisure and social options, Camberwell, Herne Hill, Dulwich Village and Nunhead are all nearby.
- Tenure: Share of Freehold (approx. 997 years remaining)
- Service charge: £1,800 per annum
- Council tax band: B
- Borough: Southwark
Floorplan
Map Streetview
Enquire
For further information or to arrange a viewing please call 020 3318 8900
























