Crystal Palace Road, East Dulwich
£575,000
Victorian conversion apartment of 609 square feet on the raised ground floor of a smart, bay-fronted semi-detached townhouse, on a popular East Dulwich residential street. Chain free.
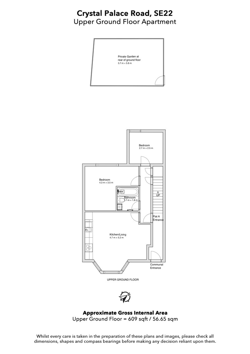
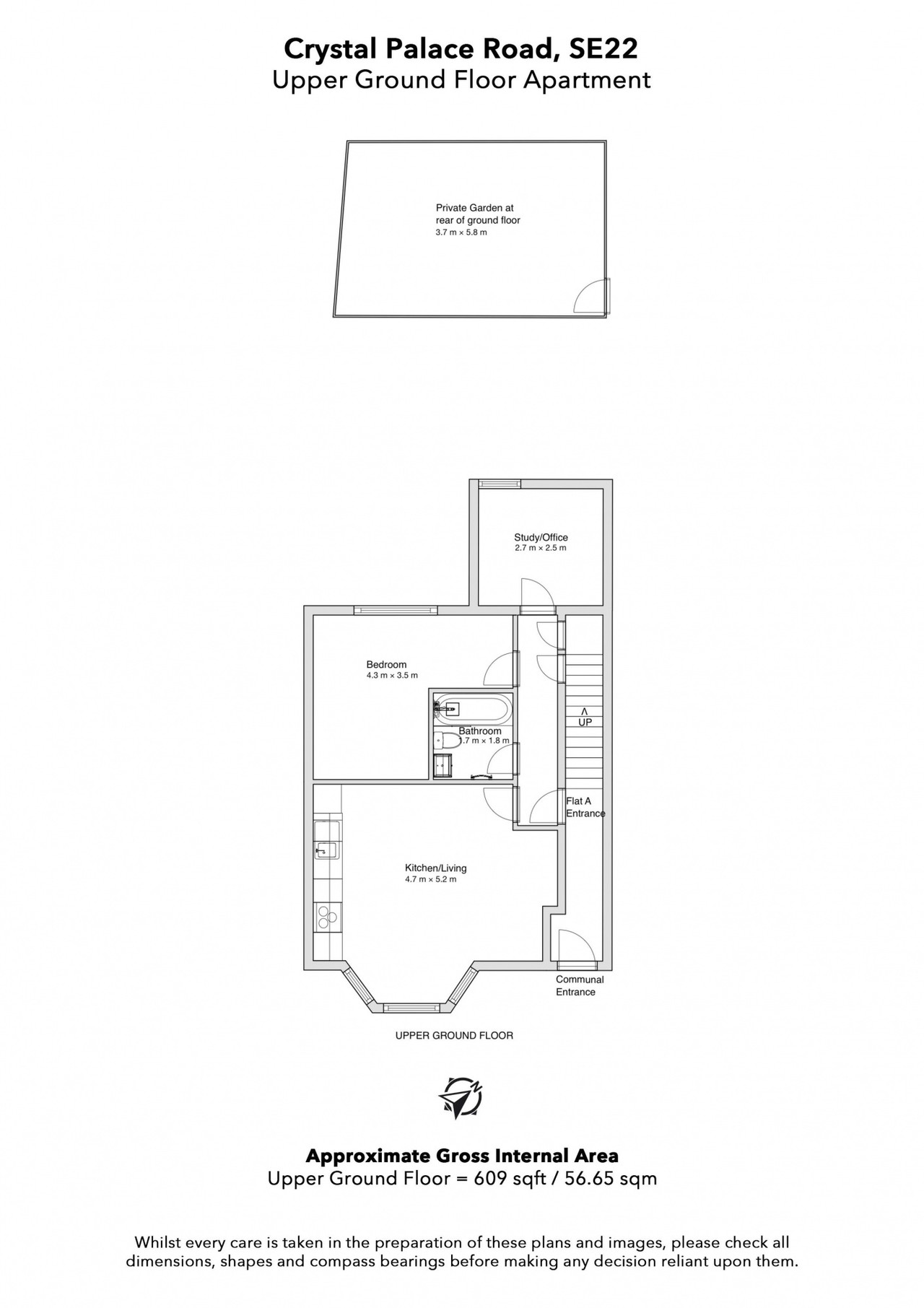
Ready for you in February, your new pad - one of just four in this boutique development - has a double bedroom and a smaller second bedroom. You will also enjoy a lawned and low-maintenance private garden (gated access is from the side of the building) and a new long lease.
You are close to Lordship Lane and North Cross Road, and to two wonderful green spaces: Dulwich Park and Peckham Rye Park and Common. East Dulwich Station (Zone 2) is a circa 15 minute walk, with North Dulwich and Peckham Rye stations just a bit further for added options and links. You also have multiple bus routes to utilise. Parking is currently unrestricted on the street.
Take stairs up to the shared main door and your front door is on this floor, to your left (before the stairs up to the two flats above yours). Open the door straight ahead for your main reception/kitchen/living room. Herringbone-flooring knocks your socks off, kitchen units are a timeless Shaker affair, and the big bay window (new double-glazed sash windows here) presents the perfect spot for your table and chairs.
Next door you have your contemporary bathroom, then the carpeted and quiet double bedroom (with sash window to the back of the building).
At the very back of the flat you have a built-in cupboard, then your second bedroom with sash window.
Saunter down to North Cross Road for the foodie Saturday market and cute shops. Or onto Lordship or Rye Lanes for both shopping and social options.
Pubs? Check out The Clockhouse, The Actress and The Great Exhibition. Lots of good ones round your way!
Lordship Lane has some ace independent grocery stores: we like William Rose, Brothers, SMBS, Mons, Moxon’s, The Cheese Block and Le Cave Du Bruno. The restaurant offering is impressive here too, with something for most moods and appetites.
Dulwich Village, Forest Hill, Herne Hill, Nunhead and Camberwell are all close for further options.
- Tenure: Share of Freehold
- Borough: Southwark
Floorplan
Map Streetview
Enquire
For further information or to arrange a viewing please call 020 3318 8900








































