Barry Road, East Dulwich
£750,000
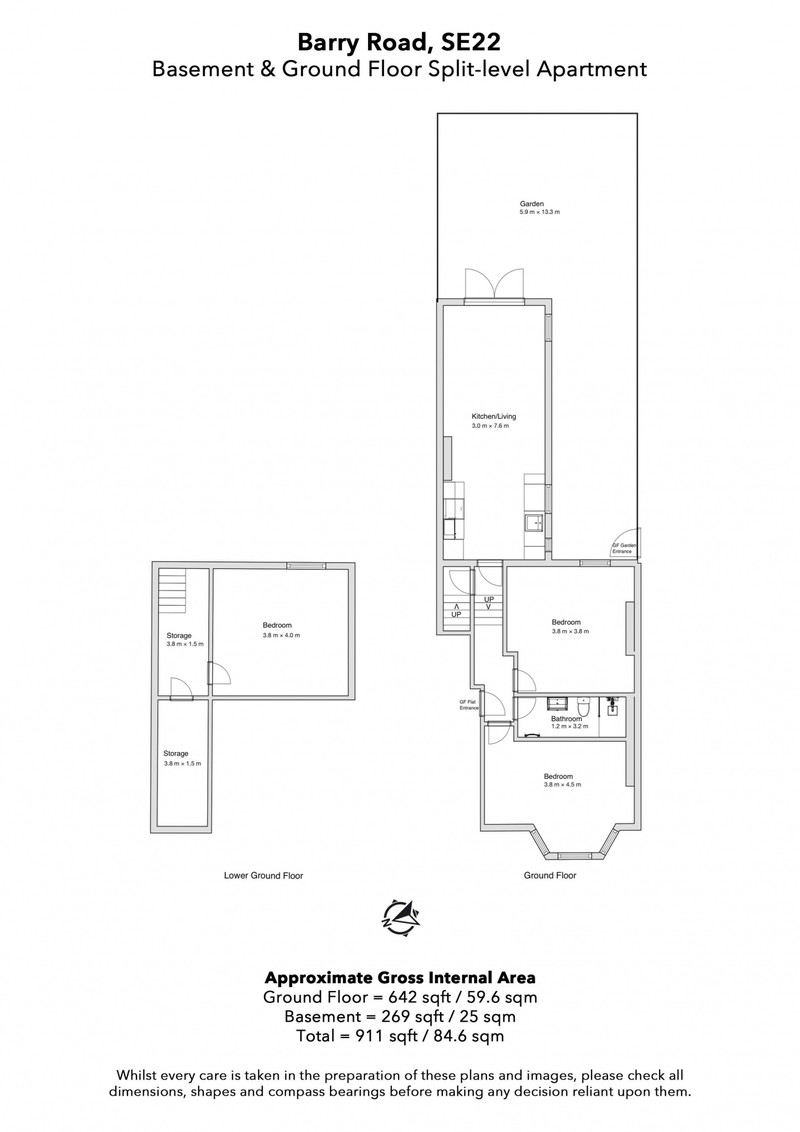
Attractive extended split-level Victorian conversion flat, with three double bedrooms and a long new lease. Your new pad (which will be ready for you for February) boasts an impressive footprint of 911 square feet, set over the lower floors of a big Victorian townhouse. A generous private SE-facing garden with direct access completes the offering. Chain free.
You are close to Lordship Lane and North Cross Road, and to two wonderful green spaces: Peckham Rye Park and Dulwich Park. You are also within easy reach of good local nursery, primary and secondary phase schools.
East Dulwich Station (Zone 2) is a circa 15 minute walk, with Peckham Rye Station just a bit further for added Overground links. You also have multiple bus routes to utilise. Parking is currently unrestricted on the street.
There is a shared main door and hall then your own front door is on your right. The property’s sleek internal shower room is ahead. A right turn at the door will take you to the first of your bedrooms, which has a big bay window.
Bedroom two is next to the shower room. Again a good double.
Then at the back of the flat, find your large kitchen/reception/dining room, with feature fireplace. The bright room is double-aspect, with French doors to the garden. Great for entertaining a few through to a crowd.
The lower ground floor level hosts the third bedroom and good storage as well.
Saunter down to North Cross Road for the foodie Saturday market and cute shops. Or onto Lordship or Rye Lanes for both shopping and social options. There are handy local convenience stores on Barry Road itself also (we like Rose & Bloom).
Pubs? Check out The Herne, The Clockhouse, The Actress and The Great Exhibition. Lots of good ones your way!
Lordship Lane has some ace independent grocery stores: we like William Rose, Brothers, SMBS, Mons, The Cheese Block, Le Cave Du Bruno and Moxon’s. The restaurant offering is impressive here too - something for most moods!
Dulwich Village, Forest Hill, Herne Hill, Nunhead and Camberwell are all close for further options.
- Tenure: Leasehold
Floorplan
Map Streetview
Enquire
For further information or to arrange a viewing please call 020 3318 8900


















