Adys Road, Peckham Rye
Best and final offers invited by 4pm, Saturday 7th February.
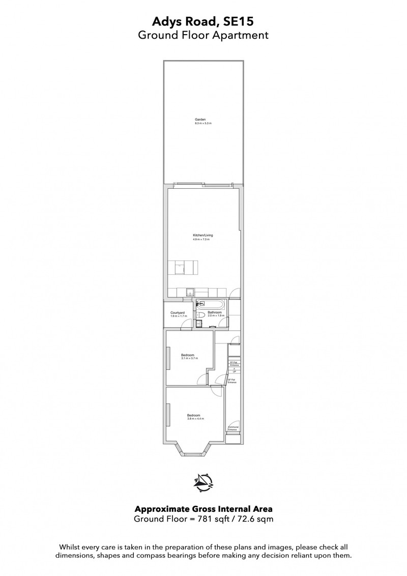
Fab ground floor two bedroom Victorian conversion garden flat of 781 square feet. It will be ready for you in February!
Sliding doors at the back of the property from your main reception/kitchen/dining room (a deftly-done extension to the property’s original footprint) provide direct access to your own private west-facing garden. With its twist of south, it’s a great suntap for late morning through to late afternoon sun. A new lease of 125 years completes the offering.
You are in popular Peckham Rye/East Dulwich borderland, only 12 minutes from Peckham Rye Station, and eight from East Dulwich Station (both Fare Zone 2). You are also just a few minutes from Bellenden Road in one direction, and Goose Green in the other.
Pleasingly, the well-established boutique developer is giving the buyer welcome freedom to customise the final design - you can choose the finishing touches you want - including kitchen (fronts and handles), worktops and splash back, flooring, wall colours, wardrobes and storage, window shutters, flooring, tiling, bike storage and more. Please ask us for more details.
From the communal hall your own front door is set to your left. On your immediate left on entry is the large principal bedroom, with a pleasing bay window. Adjacent is a second generous bedroom. This has a glazed door to a cute courtyard.
Moving through the hall there is a handy coat/cleaning cupboard to your right, then to your left is the property’s windowed bathroom - with contemporary fittings and sanitaryware.
At the end of the hall, open to your large open-plan reception/kitchen/dining room, running over 7 metres. Slide open wall-spanning doors from here to the low-maintenance, newly-fenced garden.
Bellenden Road is nearby for restaurants, cafes and shops. We highly rate Artusi, The Begging Bowl, Ganapati, The Sourcing Table, Made Of Dough, The General Store and Life of Fish.
There are lots of strong and popular pubs in the local area - check out The Gowlett, The Montpelier, The Victoria Inn, The White Horse and The EDT.
Rye Lane and Blenheim Grove are also close for more options, including Levan, Hausu, Il Giardino, Tonkotsu, Peckham Levels, and The Bussey Building & Copeland Park.
Also locally, East Dulwich Road has a bank of cute shops including a Hop Burns & Black, an ice-cream parlour, a solid chippy, and a great Indian restaurant: KOKUM.
Beyond that you have lots more options on Lordship Lane (great for independent grocery shopping as well as an M&S Food Hall and a Co-Op) and we like the North Cross Road Saturday Market. East Dulwich leisure centre (including pool) is also a short walk away, on Crystal Palace Road.
Green spaces nearby include Goose Green and Peckham Rye Park and Common’s 113 acres.
Your local primaries include St John’s & St Clements, Bellenden, The Belham (run by Dulwich Hamlet Educational Trust) and Goose Green. The Villa Nursery and Pre-Prep. School for little ones (2-7) is also close by and very popular. Little Jungle Nursery is also well-liked.
- Tenure: Leasehold
Floorplan
Map Streetview
Enquire
For further information or to arrange a viewing please call 020 3318 8900




















