The Gardens, East Dulwich
£925,000
Big, beautiful and characterful purpose-built Arts and Crafts era apartment within ‘Rye View Maisonettes’, pleasingly positioned by Peckham Rye Park and Common’s 113 acres.
Under its current ownership, the two double bedroom property has benefited from a seriously stylish and sensitive renovation. You are in for a total treat!
The oft-requested and picture-perfect address pops you in leafy East Dulwich/Peckham Rye borderland. Attractive late C19th and early C20th homes are the order of the day, and the central focus is the large private garden square for residents (being one grants you a key).
Set on the delightful detached building’s first floor (there are just six flats in the boutique block: over ground, first and second floors), you will enjoy great light all day, and notably leafy vistas via original Crittall windows.
The decorative, recently decorated communal hall provides a classy introduction to the property.
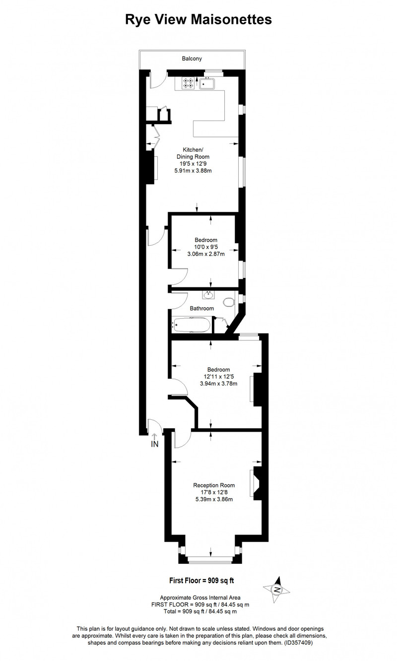
Your front door is at first floor level. From your own panelled hall, swing a right for your south-facing front/main reception. This is generous, at over 17 feet by over 12 feet. Original treated wooden floors are underfoot. Overhead you have the original tinplate pressed ceilings (so New York!). Coving and picture rail detail and a central fireplace also feature, plus a few fitted alcove shelves for books/display.
Next along the corridor you have your first bedroom (of over 12 feet by nearly 13 feet). More fab original ceilings and floors plus another fireplace here. As throughout, your decorative scheme is fresh and white.
Next door is your windowed bathroom with fitted storage, glazed ceramic tiling, original Edwardian w.c and sink, and Catchpole & Rye shower and bath fixtures.
Adjacent is your second bedroom of 10 feet by over 9 feet, with an east-facing window and whitewashed boards to the floor.
At the foot of the corridor, open to your dining room. This is open-plan to a smart (West & Reid designed) fitted kitchen which was installed in 2023. Carrera marble countertops plus Miele oven, hob and integrated dishwasher bring on the smiles, and the large dining room area hosts a fab fireplace and custom-built fitted storage. Open the back door off the kitchen space to a cute balcony area/metal fire escape, where you will find such lovely views over a multitude of well-tended gardens.
This is a particularly green and quiet part of town that will likely leave you never hearing the countryside calling! Peaceful, yet well-connected. The bustling centres of East Dulwich and Peckham are each a short walk (15 minutes). Day and night bus routes run along Peckham Rye up to the City and beyond, and your nearest stations are East Dulwich and Peckham Rye (both Fare Zone 2). On-street parking is unrestricted and plentiful.
We love ED's Lordship Lane with its independent shops, pubs and restaurants, and Peckham's Bellenden Road for the same in a more boutique setup. North Cross Road is delightful of a Saturday. Your local pubs include The Herne Tavern and The Clockhouse.
East Dulwich Picturehouse and Peckham Plex cinema are close, as is The Bussey Building & Copeland Park on Rye Lane. Bussey and Frank’s rooftop bars are a must visit in the warm months. Local top restaurants include Peckham Bazaar, Levan, Hausu, Lai Rai and Mr Bao. Cafe G, Cafe on the Rye and Nola are recommended local spots for a coffee or more.
Nunhead, Camberwell, Forest Hill and Dulwich Village are also close too for more options.
- Tenure: Share of Freehold
- Council tax band: D
- Borough: Southwark
Floorplan
Map Streetview
Enquire
For further information or to arrange a viewing please call 020 3318 8900




















































