Revelon Road, Brockley
£1,250,000
Architecturally-treated three bed, two bath Victorian terrace delivered over three floors and nearly 1500 square feet, with a sunny SE-facing garden of over 30 feet, just six minutes from Brockley Station (Fare Zone 2). Parking is unrestricted on the street.
The street is of the quiet residential variety, in a strong spot, with cafes and convenience stores close by. You are also really near John Stainer Community Primary School.
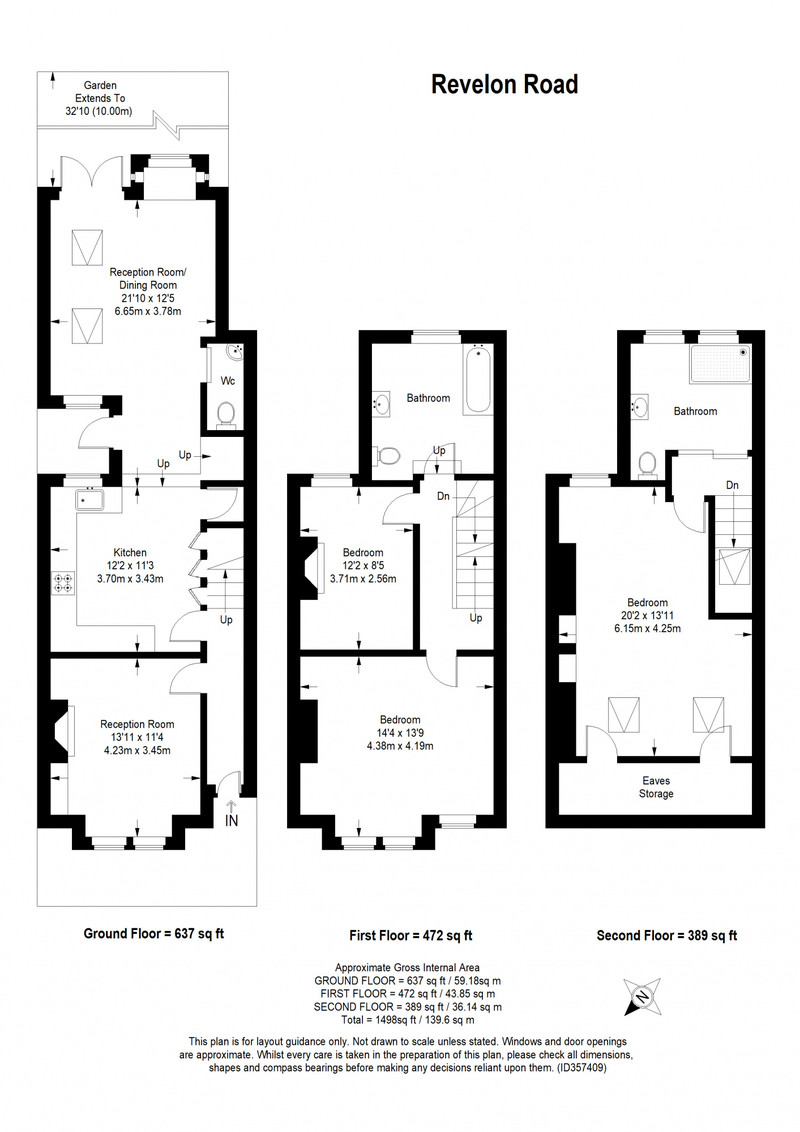
From the hall you have your formal front reception to your left, of over 11 feet by nearly 14 feet, in a dreamy green hue. A central period fireplace is a pleasing feature. Picture rail and coving detailing plus custom-made shutters also impress.
Adjacent is your smart kitchen, of over 12 feet by over 11 feet, with plentiful and timeless white fitted units. Smart storage cupboards are under the stairs (including a plumbed utility cupboard).
Down a step to gorgeous herringbone flooring and your large rear reception room, which happily accommodates seating and dining areas and is great for entertaining. A cute accessible courtyard separates you from the kitchen, and means all the spaces enjoy great light. Two big Velux windows sit over the extended section of the room which was once the property’s side-return, and double-doors and a glazed-box window seat further feature onto the garden.
Your first floor hosts a big bedroom across the front of the building (of over 14 feet by over 13 feet), with three windows and custom-made shutters to these. Then there is another double bedroom next door - of over 12 feet by over 8 feet, with original feature fireplace. Set at the back of the house you have the main windowed bathroom, with a smart white suite and on-trend modern monochrome fittings.
Up to the second floor (a deftly-done loft extension) and you have an oversized principal bedroom, of over 20 feet by nearly 14 feet. Eaves storage is accessible under the two large Velux windows. The floor and indeed tour is completed with a luxury shower room just across from the bedroom, with contemporary fittings and a pocket door.
Kids or thinking of? Local primary schools are all good ones: John Stainer, Myatt Garden and Haberdashers' Hatcham Free School (the latter has secondary provision, and all have nursery places from age 3).
Winning-at-life close is Brockley Station: Fare Zone 2 and on the London Overground network (as well as offering mainline services). The area by the station has been recently pedestrianised and the cafes and eateries here pleasingly spill into the street, giving it a warm European feel.
Also locally you have a small Sainsbury’s store, a yoga studio (this is a good moment to mention &osteo fitness and therapy rooms in Brockley as well), and Good As Gold coffee shop. Also close is Cooper’s Bakehouse (in Dragonfly Place) for the most delicious loaves.
Central Brockley is a short stroll for cafes, restaurants and bars (which are independent in the main). We like Tai, Ellary’s, Parlez, Brickfields, Brockley Brewery, Broca and Browns of Brockley.
Nunhead with its high street and village vibes is also close. Here we rate BARD4100, Ayres bakery, Goodcup/Goodnights, Mother Superior and El Vermut bottle shops (with tables too), FC Soper wet fish shop and The Old Nun’s Head.
We are big fans of New Cross’s centre as well, with its pretty, historical buildings, and nice pubs and eateries - The Rose Inn, The Earl of Derby, The Amersham Arms and Meze Mangal are all worthy of mention. Thanks hugely to Goldsmiths University, New Cross attracts a cool crowd and even has its own contemporary art gallery: Goldsmiths CCA.
Deptford High Street and Deptford Market Yard are also local, for indie bars and restaurants. We highly rate Marcella and Yazu. And hip Peckham is also easily-reached for more options. Some of our favourite SE15 spots are Peckham Bazaar, Levan, Forza Wine, The Begging Bowl, Ganapati, Peckham Levels and The Bussey Building.
For park-life, you have got Telegraph Hill's pretty Victorian ones (with views) close by. Telegraph Hill Upper Park is very popular on NYE for the panoramic views of London and the fireworks. Hilly Fields and Ladywell Fields and Nunhead Cemetery are also close. And Greenwich Park and Blackheath Common are but a short bus ride/cycle/drive.
- Tenure: Freehold
- Council tax band: C
- Borough: Lewisham
Floorplan
Map Streetview
Enquire
For further information or to arrange a viewing please call 020 3318 8900












































































