Queens Road, New Cross
£525,000
Stylish two double bedroom penthouse apartment of 683 square feet, with a Freehold-share and its own garden (accessed via the side of the building), on the second floor of a grand Victorian semi.
You are close to both New Cross Gate (six minutes on foot) and Queens Road Peckham (10) stations, within Telegraph Hill Conservation Area.
The impressive building was sympathetically converted to a very high standard in 2019; when four spacious, architecturally-designed apartments were created from a dilapidated old single dwelling, with really pleasing finishing and details - such as old school style radiators, Farrow & Ball/Little Greene wall and woodwork colours, sash windows, stripped floorboards, built-in storage and original fireplaces.
There is a shared front garden with a deep lawn. The flat’s own low-maintenance rear garden is the final section of the four. This is low-maintenance/smartly paved, and complete with a handy shed.
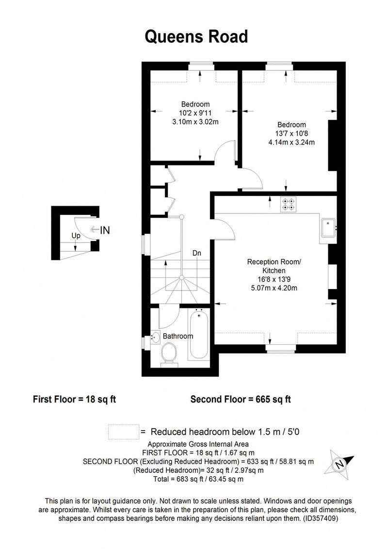
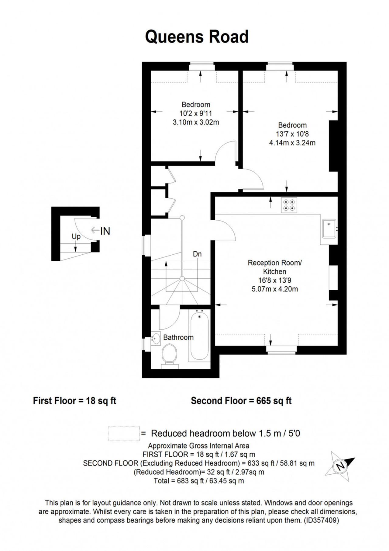
Take the stairs from the shared hall to the first floor where you’ll find the front door for this flat.
In and up and first land upon the smart bathroom with contemporary suite and fittings, including the smartest of marble basins.
Up to the landing proper and the large reception room/kitchen is off to your right. This is over 16 feet by over 13 and has a beautiful exposed brick wall (such a welcome decision) incorporating an opened up fireplace, with stripped boards to the floor, plus a south-east facing window to the rear of the building. The kitchen worktops are Carrara marble and you have a Smeg oven and integrated fridge/freezer and dishwasher. The current owners have added cool floating shelves in this room for books/display.
In the landing/hall area you have two built-in storage cupboards. The two bedrooms sit to the front of the property; the master is over 13 feet by over 10 feet with stripped boards underfoot, and the second double, adjacent, is over 10 feet by nearly 10, and carpeted.
Telegraph Hill – the largest and most desirable Conservation Area in New Cross – is popular for its lovely Victorian parks and fancy Victorian architecture. The neighbourhood was once home to Victorian poet Robert Browning and was developed in the late C19th, replacing market gardens which were owned by the Worshipful Company of Haberdashers (who controlled the development), with high-standard housing.
As well as the attractive architecture and period street lamps, what stands here now is a leafy community with weekly Farmers’ Market and community event calendar, plus good connections to central London, alongside great schools and parks.
New Cross Gate and Queens Road Peckham stations are both a short and easy walk away, for Windrush line and regular services (London Bridge is just one stop from NXG, or pick up the Jubilee line at Canada Water). The day and night bus routes are brilliant too in this part of town and now include the Bakerloop bus.
Local galleries include Goldsmiths CCA (a very short walk) and South London Gallery in Camberwell (a short bus ride). White Cube Bermondsey is also easily reached.
Local eateries and drinkeries of note include The Rose, Queens, Beer Rebellion, The Earl of Derby, Skehan’s, The Old Library and Corner (cafe with lates).
For more options, it id a short journey to Greenwich, Deptford, Nunhead, Peckham and Camberwell.
- Tenure: Share of Freehold
- Council tax band: B
- Borough: Lewisham
Floorplan
Map Streetview
Enquire
For further information or to arrange a viewing please call 020 3318 8900












































