Nutbrook Street, Peckham Rye
£1,350,000
Best and final offers invited by 5pm, Friday 18 October 2019.
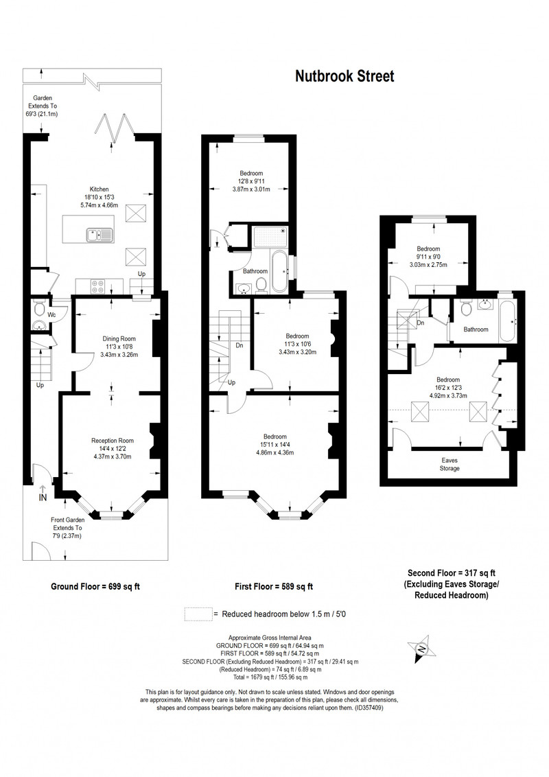
Optimised Victorian terrace in top Peckham Rye spot, with five bedrooms and two bathrooms, and a south-facing garden stretching almost 70 feet. The house measures in at an impressive 1679 square feet (not a typo) and is beautifully turned-out throughout, with welcome features that include a huge kitchen/diner - with folding doors taking advantage of the southerly orientation, a wood-burning stove in the formal front reception, modern fitted bathrooms and kitchen, old school style radiators, neutral decor, and a downstairs guest loo. The street is of the tree-lined residential variety, and you’re just an 8 minute walk from Peckham Rye Station, 6 minutes from Bellenden Road, and 5 from The Belham Primary School. Freehold.
In the hall and take a right into the large and pale-carpeted double-reception extending over 25 feet. A deep bay window (with plantation shutters to the lower panes), ceiling roses and coving detailing are smile-bringers. The front reception also has built-in alcove cupboards and shelving. Access the large rear room from the second reception area, or from the hall, past the downstairs w.c. It’s a whopper of a space at over 18 feet by over 15. The slick, gloss-white kitchen with centralised island is set to the nearest wall, with ceiling-high units and a tall laundry cupboard set to your left, while folding doors at the foot of the room open onto the gorgeous and notably-private, well-established garden with paving, a generous lawn, and a mature fern, fig and palm among other plantlife. It’s south-facing so you’ll enjoy day-long sun.
Up the stairs and from the half landing you have a good double bedroom to the rear with garden views. Next door is a smart bathroom with both bath and oversized shower, concealed plumbing, and recessed lighting. Fittings are high-end contemporary. From the landing proper you have the bay-windowed master bedroom taking the width of the terrace (at nearly 16 feet by over 14) at the front, and the third double bedroom next door - of over 11 feet by over 10. Taking the stairs again and another smaller double awaits - at nearly 10 feet by 9. Up a few more stairs and a second bathroom follows via sliding door; this time with free-standing bath. The fifth and final bathroom sits at the front of the house, with two massive skylight windows, built-in wardrobes, and accessible eaves storage.
Pleasingly, Peckham Rye Station (Zone 2) is a pleasant 8 minute stroll for regular and Overground services. East Dulwich Station is also close - walk there in 12 minutes. Green space? Warwick Gardens, Goose Green and Peckham Rye Park and Common’s 113 acres are all close. The independent shops etc. of Bellenden Road are a short stroll away. Review bookstore and Flock & Herd butchery are a couple we recommend you don’t miss.
You needn’t leave the neighbourhood of the evening or weekend for gastronomical and social life. Local cafes and restaurants include Anderson’s, Levan, The Begging Bowl, Banh Banh, Mr Bao, Miss Tapas, Ganapati and Artusi restaurants. On Rye Lane you have Tonkotsu and Taco Queen among other cracking eateries. Local pubs include The Victoria Inn, The White Horse and The Montpelier.
In the warm months, ascend for rooftop drinks at Frank’s and also atop The Bussey Building. Rye Lane is close for high street essentials, fruit and veg stalls, banks and a large supermarket, as well as Peckham Levels and The Bussey Building and Copeland Park complex. It’s all going on in SE15 and there’s even more to come - including the regeneration of and around Peckham Rye Station and The Peckham Coal Line. Local primary schools include The Belham (Dulwich Hamlet Educational Trust backed) and St John's & St Clement's C of E. The Villa Nursery and Pre-Prep. School for little ones aged 2-7 is also a short walk away.
- Tenure: Freehold
Floorplan
Map Streetview
Enquire
For further information or to arrange a viewing please call 020 3318 8900










































