Peckham Rye, Peckham
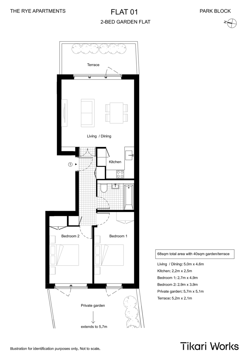
Architect-designed two bed apartment of 732 square feet and of solid timber construction, in an enviable position right by Peckham Rye Park and Common’s 113 acres.
One of just ten properties in a boutique development by RIBA award-winning Tikari Works (your building has six apartments); this one boasts both a private terrace (facing east) and a private garden (facing west). You also have underfloor heating and solar panels. Peckham Rye Station is a 10 minute walk and it is 15 to East Dulwich Station. Chain free.
In your own front door and the reception room is on your left. A pleasingly-generous room with plenty of space to zone seating and dining areas. The kitchen sits neatly off the main space, where you'll find integrated high-end appliances (Bosch, Neff).
Right of the front door, across the hall, you have the property’s bathroom, with contemporary white suite (Laufen and Duravit sanitaryware) and over bath shower.
Both bedrooms are big doubles with built-in storage and oversized glazed doors which open to your low-maintenance and west-facing private garden.
This is a top spot for accessing central Peckham, East Dulwich and Nunhead. You have also got some lovely pubs nearby in The Herne Tavern, The Clockhouse, The White Horse, Watson’s General Telegraph and The Angel Oak.
Bellenden Road and Lordship Lane are both but a 10 minute walk for independent shopping and restaurants of the highest order. For cinema dates, book ahead at nearby Dulwich Picturehouse.
Keeping fit? East Dulwich leisure centre is close with swimming pool, gym and classes, or sign up for British Military Fitness in the park. A Saturday Parkrun runs here too at 9am. Cyclists will appreciate secure bicycle storage.
- Tenure: Freehold (approx. 143 years remaining)
- Service charge: £3,000 per annum
- Ground rent: £250 per annum
- Council tax band: D
- Borough: Southwark
Floorplan
Map Streetview
Enquire
For further information or to arrange a viewing please call 020 3318 8900


































