Oakhurst Grove, East Dulwich
£550,000
Smart and split-level two double bedroom second floor period conversion flat of 656 square feet, with a new lease of 125 years.
The location is a pretty and peaceful one-way residential street in prime East Dulwich/Peckham Rye borderland - close to Goose Green, Peckham Rye Park and Common, Lordship Lane, and to both East Dulwich and Peckham Rye stations (walk 12 and 14 minutes to these respectively).
Pleasingly, the well-established boutique developer is giving the buyer welcome freedom to customise the final design - you can choose the finishing touches you want - including kitchen (fronts and handles), worktops and splash back, flooring, wall colours, wardrobes and storage, window shutters, flooring, tiling, bike storage and more! Please ask us for more details.
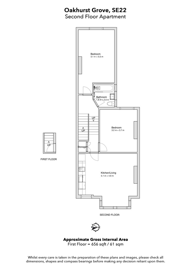
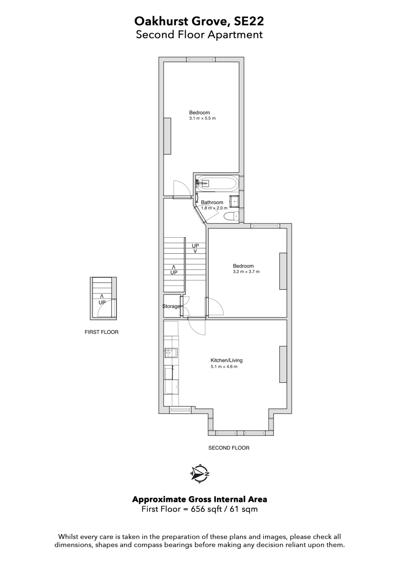
There is a shared main door and you share this and your hall with just two other properties (there are two below yours). Your own front door is on the first floor and once opened, take stairs up to a landing area with bedroom one leading off ahead at the back of the building, and the property’s windowed bathroom (with over-bath shower) set to your right.
Up the rest of your stairs and bedroom two rests to your left (once again, a good double), while your main room sits across the front of the building. Entertaining-friendly, this is over 5 metres by over 4 metres, with four windows in the square bay (a natural spot for your table and chairs), and a feature fireplace.
Loft space is accessible from this top landing (for storage) and there is a storage cupboard next to the loft hatch.
What’s around and about? Most locally on East Dulwich Road, you have a classy parade including a Hop Burns & Black, ice cream parlour, bike shop, chippy, and KOKUM (contemporary modern Indian restaurant/bar), as well as a handy Teaco Express and a couple of convenience stores. The popular East Dulwich leisure centre is on this stretch too, as is a Majestic outlet (because life is about balance!).
You are in a fine spot here to enjoy all that Peckham and East Dulwich have to offer in terms of shops restaurants, bars, cafes and markets. Some of our favourites include SMBS, Franklins, Mons, William Rose butchery, Chener Books plus North Cross Road’s Saturday market - in SE22, and Artusi, Ganapati, Review book store, The White Horse and The Gowlett pub - in SE15.
The triangle at the point of Peckham Rye Common is abuzz with cafes, eateries and drinkeries - such as Banh Banh, Mr Bao, Voodoo Ray’s and Funkidory.
And just beyond this area, Rye Lane is bursting with cool socialising spots, with the likes of Peckham Levels, and The Bussey Building & Copeland Park - enjoy trendy eateries, drinkeries, rooftop bars, yoga classes and suchlike.
Nunhead is an easy walk for independent staples such as FC Soper (wet fish shop) and Ayres (bakery). El Vermut and BARD4100 are great here as well. For more options, you are not far from Camberwell, Herne Hill and Dulwich Village.
- Tenure: Leasehold
Floorplan
Map Streetview
Enquire
For further information or to arrange a viewing please call 020 3318 8900
















