Nutcroft Road, Peckham
£750,000
Viewings commence Monday 1st December.
Delightful extended Victorian two double bedroom ground floor garden flat, on a quiet residential back street just a 10 minute walk from Queens Road Peckham Station (Fare Zone 2).
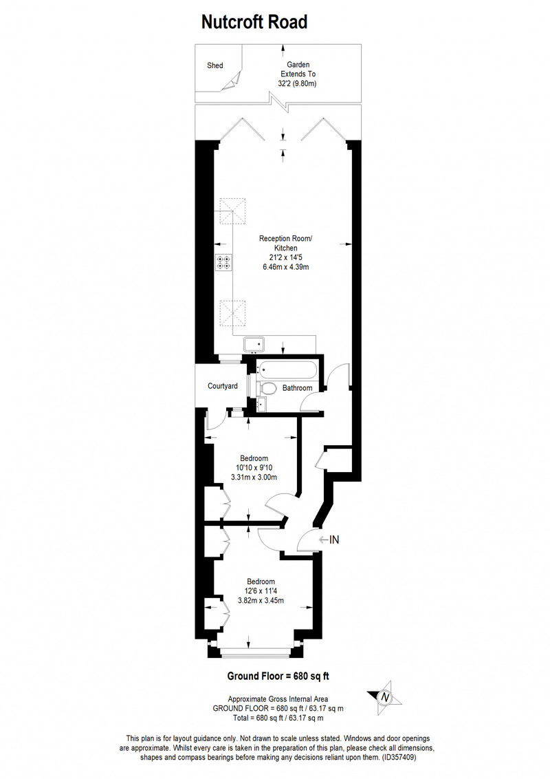
You share a neat hall. In your own front door and to the front of the building you have your first bedroom. This is over 12 feet by over 11 feet, with fitted to-the-ceiling wardrobes to both alcoves.
Adjacent is the second double bedroom, in a soft pink hue. This one is over 10 feet by over 9 feet, with one built-in wardrobe, and a double-glazed door to a cute courtyard.
A cupboard in the hall is useful for coats and such. Then on your left you have the property’s windowed bathroom, complete with over-bath shower. A contemporary white suite impresses, teamed with on-trend monochrome detailing.
The best bit awaits: your large living room/dining room/kitchen. This is over 21 feet by over 14 feet, with wall-spanning folding doors to the sunny garden. The fitted kitchen is modern in style, with integrated appliances (which are included in the sale). Roofline skylight windows are a great decision over this area.
The garden has paved and faux-lawned areas plus neat fencing. You are facing east so will enjoy great morning sun.
SE15 keeps on sizzling! Queens Road Peckham Station has regular and Windrush line services. These have been improving the already-good connectivity to the City since 2012.
The Blackbird Bakery (in one of the QRP arches) is a popular spot for coffee, cake and pizza lates. Mamma Dough, Well & Fed, Peckham Cellars and Beer Rebellion are also strong and popular.
You are just a 16 minute walk from Peckham Rye Station and Bellenden Road; where gastronomic delights include The Begging Bowl, Artusi and Ganapati. Made of Dough has half price pizza on Mondays.
Rye Lane is a 15 minute walk for trendy eateries and hangouts such as Forza Wine, Peckham Levels, and The Bussey Building & Copeland Park. Peckham Plex Cinema is a brill institution, too.
Walk 10 minutes for Peckham Library and neighbouring leisure centre, plus canal path through Burgess Park.
You are also close to New Cross - for Goldsmiths University, contemporary art gallery (Golddmiths CCA) and Telegraph Hill’s pretty Victorian parks. Nunhead, Dulwich, Camberwell, Bermondsey, Greenwich and Brixton are all nearby for more options.
- Tenure: Share of Freehold (approx. 100 years remaining)
- Service charge: £870 per annum
- Council tax band: B
- Borough: Southwark
Floorplan
Map Streetview
Enquire
For further information or to arrange a viewing please call 020 3318 8900
















































