Kirkdale, Upper Sydenham
£1,950,000
Enchanting semi-detached Victorian townhouse delivered over four floors and 2544 square feet, with two entrances (on your lower and raised ground floors respectively). Off-street parking on your front drive and a large SW-facing lawned garden of over 80 feet (with pleasing gated side access) seal the deal.
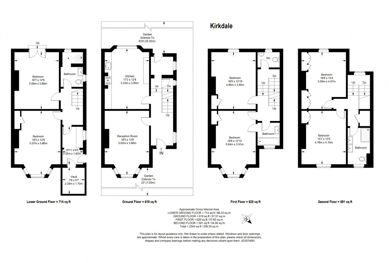
You are on glorious high ground here; far-reaching views firmly impress, setting this home apart from the rest. The substantial property has a flexible layout with six sizeable rooms (beyond your roomy reception and your generous kitchen/dining room on the upper ground floor). Use all six of these as double bedrooms, or enjoy extra reception/WFH space as your setup requires and desires. Two shower rooms and a bathroom make for no morning dramas (there is even a separate boiler serving the lower ground floor).
A wealth of period features impress throughout. We particularly love the wood-burner in your front formal reception room, the super high ceilings on your mid-floors, formal double-bays and large sash windows, stripped wooden floors and pitch-pine doors - among many other delights.
Potential to extend? Yep! There is plenty of scope to extend to the rear. Also/instead you could install a garden studio at the foot of the garden, as is so popular these days.
Location? You are in leafy Upper Sydenham/Forest Hill borderland - close to shops and transport links, and the Dulwich indies plus great state schools as well. There is free (unrestricted) parking on local streets (for when you have guests), and your good bus routes on Kirkdale and Dartmouth Road include the nippy no. 176 to Tottenham Court Road, or you can walk ~10 minutes to either Forest Hill or Sydenham stations (for regular and Windrush line services).
Up a few steps through your front door and you land in a welcoming, windowed hall. You’ll note the pretty bannister/stairwell. Your smart front reception is a dreamy one - of over 18 feet by over 12 feet, with high skirtings, picture rail and coving, and a central wood-burning stove.
Next door is your sunny large-sash-windowed kitchen/dining room, of over 17 feet by over 12 feet. Raised views over your gorgeous garden are just delightful, and as next door, you have a column radiator. Your fitted kitchen units are simple and timeless in style, teamed with metro-style tiling and a large range cooker.
At the end of the hall on this floor is a little windowed lobby where you can access the garden down a few stairs (you can also access the garden from downstairs).
Heading downstairs now, you have two big rooms which work as bedrooms or receptions; the rear one with French doors out to your fabulous outside space which has a big deck and a deep lawn. Also on this floor you have underfloor heating, a (windowed) shower room and a utility room, plus vault (under the front steps).
Your first floor hosts two dreamy bedrooms. The front bayed one is over 18 feet by nearly 13 feet, and the rear (garden-views here) one is 16 feet by nearly 13 feet. A smart bathroom and independent w.c. complete the floor.
Your top floor gives you two more double bedrooms - these are over 15 feet by over 13 feet, and over 16 feet by over 13 feet. Both have built-in alcove storage.
A big built-in linen/towel cupboard and a modern windowed shower room with double basins completes the floor and indeed the tour.
Sydenham and Forest Hill have many great spots for food and drink. Some of our favourites include Mont58, The Foresters, Sylvan Post, The Dolphin, Sushi Garden, Journey Cafe, Cobb’s Corner Cafe, The Moustache, Bona, Fat Cheeks, Mamma Dough and Gurkha’s. East Dulwich's Lordship Lane, Dulwich Village and Crystal Palace's Triangle are also close for more options.
Keeping fit? You are less than 10 minutes from the local swimming pool on Dartmouth Road, two gyms, and two yoga studios. For golf, you have the Dulwich (SE21) and Aquarius (SE22) courses locally.
For green space, you are simply surrounded! Check out Sydenham Hill Wood, Crystal Palace Park, Horniman Gardens, Sydenham Wells Park, Mayow Park and Dulwich Park. Further afield - but still easily reached - are Beckenham Place Park and Peckham Rye Park.
- Tenure: Freehold
- Council tax band: E
- Borough: Lewisham
Floorplan
Map Streetview
Enquire
For further information or to arrange a viewing please call 020 3318 8900














































































