Grove Park, Camberwell
£599,950
Beautiful one double bedroom apartment set on the lower ground floor of a grand and detached Victorian mansion, with off-street parking out front for its residents. The property has its own low-maintenance paved private garden (with ideal direct access from the reception space), and an enormous communal garden as well. A southerly aspect ensures long bright days.
Find your new dreamy and turnkey pad within leafy Camberwell Grove Conservation Area, on lovely high ground. So pretty and so well-connected, too! Denmark Hill and Peckham Rye stations are reached by foot in 10 and 12 minutes respectively.
Enter in the main front door (from the hall at raised ground floor level there is additional communal garden access, via a shared back door at the back of the building) then take the stairs down to your own front door.
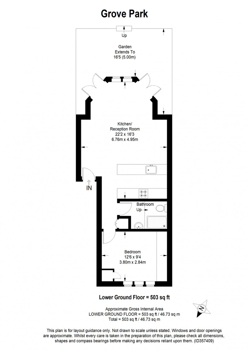
You open directly into your main roomy reception room which is open-plan to the neat modern kitchen. In cool ply (units and fronts), this has a generous number of wall and base units. The large bay onto the garden is a wonderful heart-winning feature, and French doors plus a central feature window impress. Underfloor heating throughout keeps the whole apartment cosy (and walls free for flexible furniture placement).
Engineered oak floors flow through to the sash-windowed bedroom, which is set at the front of the flat, and is over 12 feet by over 9 feet. As throughout, walls are fresh and white.
Finally you have your sleek shower room. This has concealed plumbing, a contemporary white basin and lavatory, on-trend matte monochrome fittings, and a heated towel radiator. A tall mirrored cabinet keeps products and toilet tissue tucked away. There is another useful linen/cleaning cupboard next to the bathroom door.
What a truly excellent location to call home. Bellenden Road is a nine minute walk, and central Camberwell a similar distance, down gorgeous Camberwell Grove. You are also a short walk from East Dulwich's fabulous long high street: Lordship Lane.
Peckham Rye and Denmark Hill stations (both Zone 2) are both local with regular and Windrush line services. London Bridge, London Victoria, Clapham Junction, Kings Cross St Pancras and Canary Wharf (via Canada Water), among other destinations, are all quickly reached.
Lettsom Gardens is popular with locals. A nominal yearly membership will get you a key. A large Sainsbury’s store is close by on Dog Kennel Hill, by Dulwich Hamlet FC, and there’s also a M&S nearby on Grove Vale by East Dulwich Station (also Zone 2).
Local parks include Ruskin Park - with bandstand and events here throughout the summer, Warwick Gardens, Peckham Rye Park and Common and Dulwich Park.
Central Peckham is a cultural and gastronomic mecca. Check out Bellenden Road, Choumert Road and Blenheim Grove for some top restaurants, bars and cafes (Artusi, Levan, Il Giardino, The Begging Bowl, Hausu and Ganapati to name a few), while Rye Lane gives you Peckham Levels and Bold Tendencies, and Frank's Bar and The Bussey Building's rooftop bars in the warmer months, plus Peckham Plex Cinema (dedicated to films for £5.99).
South London Gallery (opposite tremendous TOAD bakery) is close as well, and Camberwell leisure centre has good classes and gym and swim facilities in a pretty Victorian setting. Gladwell’s in Camberwell is a fine spot for luxury groceries, with a Turner & George meat counter.
Local recommended places to eat and drink in SE5 include Theo's, The Camberwell Arms, The Kerfield Arms (great lunch deal here), The Bear, Silk Road, Veraison Wines, Forza Win and Hermits Cave.
- Tenure: Share of Freehold
- Council tax band: B
- Borough: Southwark
Floorplan
Map Streetview
Enquire
For further information or to arrange a viewing please call 020 3318 8900










































