Dingley Lane, Streatham Hill
£350,000
Offers in excess of £350,000.
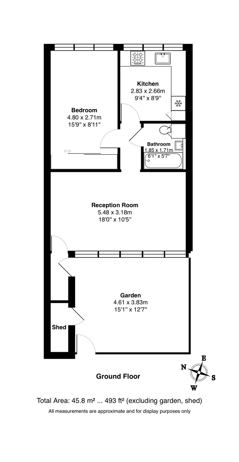
Delightful one bedroom ground floor purpose-built ex-LA flat of 493 square feet, with a private courtyard garden plus a large and secure brick-built shed.
Find your new home within a well-designed, low-rise estate in the leafy Streatham Hill locale, winning-at-life close to Tooting Bec Common and its fab Lido. You are a five minute walk from Streatham Hill Station (17 mins to London Victoria) and the SH end of Streatham High Road. Balham tube is a 20 minute walk. Bus routes (to Brixton and beyond) are great in these parts, too.
A gate opens to your walled and smartly-paved private garden which fronts the house. A natural entertaining spot. A large raised bed will keep those with green fingers very happy. Access your lockable private shed from the tiled path area.
Open your front door into a little lobby, then a second timber-framed glazed internal door to the main reception room. This is large enough for your seating area and for a table and chairs as well, at 18 feet by over 10 feet. A bank of double-glazed windows (the flat is double-glazed throughout) capitalises on your southwesterly orientation.
Off your reception room and the bedroom rests next on your left. This is over 15 feet by nearly 9 feet, with a built-in wardrobe to the near wall, with three sliding panel doors. As throughout, the walls are fresh and white.
On your right from the reception, you have the neat internal bathroom - stylishly appointed, with contemporary white sanitaryware and built-in storage, then the independent kitchen. This has pale and smart modern wall and base units paired with wooden worktops. Square white tiles look great with contrasting grout (as found in the bathroom as well).
Streatham Hill Station is a pleasingly-short walk from the property and great bus routes are plentiful on Streatham High Road/Streatham Hill.
Shops, cafes, bars, pubs and restaurants are all within easy reach. A couple of our favourites include Thompson Deli & Baker (pastries, olives, meats etc.), and Art & Craft (beer shop). You also have a Fitness First gym with pool locally. This is an area already offering its residents a great deal but also in the throes of major regeneration - with many large and tired period buildings visibly being converted into high-end dwellings.
- Tenure: Leasehold (approx. 89 years remaining)
- Service charge: £1,200 per annum
- Ground rent: £10 per annum
- Council tax band: B
- Borough: Lambeth
Floorplan
Map Streetview
Enquire
For further information or to arrange a viewing please call 020 3318 8900






















































